Vorteile

• keine notwendige Betonierung vor Ort
• das stabile Metallprofil stärkt die Verbindung
• schnelle Verlegung
• zeitbeständig

 





 
Produkt Produkt-nummer
RDL-12 160201
RDL-19 160202
RDA-25 160301
RDA-40 160302
RDT-12 160401
   
Bezugsnormen
FLL Richtlinien 5.11./2002 Abgrenzung


Produktbeschreibung


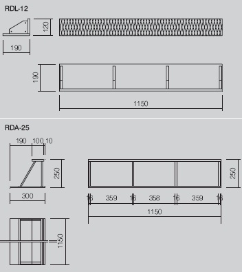
RDL-Produkte sind vormontierte Stützelemente und zur Einfassung der verschiedenen Schichtstärken des Aufbaus geeignet.

Die DIADEM RDA-Elemente werden in verschiedenen Standardhöhen und objektbezogen in Sondermaßen geliefert. Sie verfügen über Montageröhren zur verdeckten Verlegung von Leitungen und Rohren. Die Sichtseiten bieten vielfältige Möglichkeiten zur Oberflächengestaltung.


Anwendung

Die DIADEM “L-förmigen” Randelemente werden zur Einfassung von Pflanzbereichen, zur Abgrenzung von Geh- und Terrassenbelägen oder zur Ausbildung von Trögen verwendet. Die Standardhöhen sind 12 und 19 cm, aber auf Kundenwunsch kann jede beliebige Höhe produziert werden. Die Außenflächen sind standardmäßig mit einem ästhetischen Rautenmuster versehen. Durch werkseitige Lackierung oder Verputzung werden die Elemente auch für Sichtflächen attraktiv gemacht. Das Recycling-Material ist bruchfest und mit einer Säge leicht bearbeitbar.

RDA-Produkte sind hauptsächlich für die Einfassung bei beschränkt belastbaren Dächern und verschiedenen Schichtstärken anzuwenden.


Einbauhinweise

Zur Sicherung der ungehinderten Wasserableitung wird auf die belastbare DiaDrain-Schicht, ein Bett aus 4-8 mm korngroßem und mind. 5 cm dickem Splitt verlegt, auf das die Elemente nach Nivellierung und Verdichtung unmittelbar latziert werden können. Für die Eckbildung stehen spezielle Elemente zur Verfügung. Auf der Oberkante ist ein Leichtaluminiumprofil befestigt. Die Randelemente sollten so verlegt werden,dass die Aluprofile die Stöße überlappen. Dadurch werden die Randelemente gut ausgerichtet. Bei größeren mechanischen Beanspruchungen können die Stöße auch mit optional lieferbaren Schrauben miteinander verbunden werden.


Werkzeuge für den Einbau

Säge, Schraubenschlüssel, Wasserwaage, Richtschnur


Weitere Produkte

• RDL-UNI(12) Eckelement


Produktzubehör

• Verbindungsschrauben aus Edelstahl
• lackierte Sichtfläche in RALFarben


Häufig gestellte Fragen

Was garantiert die Standfestigkeit des Produktes?
Die Randelemente werden auf einem Unterbau aus Splitt aneinander gesetzt und verschraubt.

Ist das Produkt auch wie ein Pflanzkübel verwendbar?
Als separater Kübel nicht, aber eine Anhügelung mit Einfassung ist leicht gestaltbar.

Wozu dient das Metallprofil auf der RDL Produktoberkante?
Das Profil ist für die Verbindung der einzelnen Elemente vorgesehen.

Wie werden Ecken ausgebildet?
Für die Ausbildung von 90° Ecken stehen auch RDL-UNI Produkte zur Verfügung, welche beidseitig, links und rechts, verwendbar sind. Für die RDA-Systeme sind Innen- und Außenecken separat lieferbar.

Ist der Zuschnitt vor Ort möglich?
Die Elemente sind beliebig zuschneidbar.

Technische Daten Dim RDL-12 RDL-19 RDA-25 RDA-40 RDT-12
Produktnummer 160201 160202 160301 160302 160401
Länge [cm] 115
Breite [cm] 19 24 30 48 19
Höhe [cm] 12 19 25 40 18
Gewicht [kg] 6,1 8,14 11 20,27 6,5
Außenecke
(L × B × H)
[cm] 115 × 19 × 12 115 × 24 × 19 30 × 30 × 25 48 × 48 × 40 115 × 19 × 18
Innenecke
(L × B × H)
[cm] 115 × 19 × 12 115 × 24 × 19 60 × 60 × 25 96 × 96 × 40 115 × 19 × 18
Farbe schwarz (anthrazit)
Material recyceltes Polystyrol
Außenfläche Rautenmuster
Frostbeständigkeit ja